siegburgaktuell 29.06.2025

Tag der offenen Tür im Kinderheim
Siegburg. Wer bei Kinderheimen an trostlose Orte denkt, liegt im Fall Pauline gründlich daneben. Am Samstag, 6. Juli, von 11 bis 17 Uhr öffnet die Einrichtung in der Jakobstraße 16 ihre Türen und lädt herzlich dazu ein, sich selbst ein Bild zu machen.
"Wir wollen mit Mythen rund um Kinderheime aufräumen", so Heimleiterin Sonja Boddenberg. Neben Speisen und Getränken erwartet Kinder, Jugendliche und Erwachsene ein abwechslungsreiches Programm samt Spielparcours, Schnitzeljagd und einem Flohmarkt in der Kita. Besonderes Highlight sind die Auftritte der hauseigenen Band und Tanzgruppe. Unterstützt wird der Tag von den Wolsdorfer Vereinen, die ebenfalls einen Beitrag zum bunten Programm leisten.

Großes Treffen in der Tagespflege
Siegburg. Die Verwaltung gibt den in Siegburg tätigen 35 Tagesmüttern und zwei Tagesvätern regelmäßig die Möglichkeit, sich auszutauschen und zu vernetzen. Beim letzten Treffen im Kinderheim Pauline sprach die Gruppe über aktuelle Entwicklungen wie den geburtenschwachen Jahrgang und rückläufige Anmeldezahlen, bei denen auch der U3-Ausbau in den Kitas eine Rolle spielt. Die Fachberatung innerhalb des Jugendamts kümmert sich um die Qualifizierung und die ständige Fortbildung. Als nächstes steht am 8. und 9. Juli das Thema Spielpädagogik auf der Agenda. Die Fachberaterinnen heißen Dalva Eggert und Sophie Starke (Foto links). Sie begleiten die Tagespflegepersonen professionell, empfangen interessierte Eltern gern zum Beratungs- und Informationsgespräch. Kontakt unter kindertagespflege@siegburg.de.

Varianten liegen zur Beratung vor
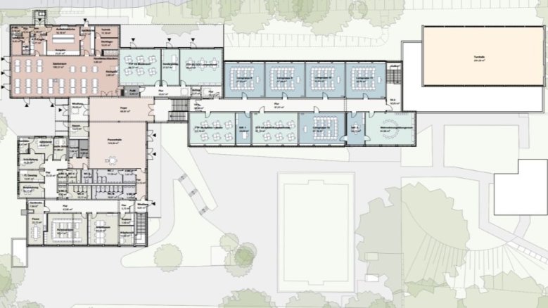
Siegburg. Die anstehende Vergrößerung der Grundschule Kaldauen wurde im Bauausschuss am Mittwoch besprochen. Im Zentrum stand die Frage: Warum eine Preissteigerung von 10,5 auf 15 Millionen Euro innerhalb eines guten halben Jahres? Die Erklärung: Zwischenzeitlich fand die planerische Vertiefung statt. Gespräche wurden geführt mit der Schulleitung, die Struktur der Haustechnik nahm deutliche Konturen zu, neue Erkenntnisse zur Bausubstanz des Bestandes flossen ein, zwangsläufig ergaben sich neue Erfordernisse, ergo: neue Kosten.
Im Ausschuss präsentiert wurden vier Varianten, die auf dem grundsätzlichen Entwurf fußen, dem die Politik im letzten Jahr grünes Licht gab. Zwei Mindestlösungen im Bereich des ursprünglichen Kostenrahmens; einen Kompromiss, der zweieinhalb Millionen teurer wird; und das Komplettpaket, bei dem genannte viereinhalb Millionen Euro draufgeschlagen würden. Die Fraktionen beraten jetzt, um zu einem finalen Beschluss zu kommen. Die aktuelle Zeitschiene sieht eine Fertigstellung der neuen Mensa samt Erweiterungsbau Ende 2026 vor, die restlichen Arbeiten sollen 2027 erfolgen.

Freiburger Organist in St. Servatius
Siegburg. Am Sonntag, 6. Juli, spielt Jörg Schwab, Organist im Freiburger Münster, im Rahmen des 34. Siegburger Orgelzyklus ab 16.30 Uhr Werke von Johann Sebastian Bach, Georg Friedrich Händel und Charles-Marie Widor sowie eigene Kompositionen an der großen Klais-Orgel der Stadtpfarrkirche St. Servatius. Der Eintritt ist frei, um Spende am Ausgang wird gebeten.

Donnerstagabend über Siegburg
Siegburg. Ein "Spektakel am Himmel" hielt Ingrid Tuchel am Donnerstag über Siegburg fest.

Stadtnachrichten online
Siegburg. Nachrichten und Veranstaltungen, Bürgerservice und Digitale Verwaltung, Mängelmelder und Umfragen. Mit der App Citykey lernen Sie die Kreisstadt neu kennen und erledigen Behördengänge bequem über das Smartphone. Ganz einfach, unabhängig von Zeit und Ort. Download über nachfolgenden Link.
Videos, Bilder, Informationen, oftmals direkt vom Ort des Geschehens: Wer die städtische Facebookseite Kreisstadt Siegburg oder den Instagram-Account kreisstadt_siegburg liked, der ist quasi mittendrin. Mehr zu spannenden Ausflugszielen und Freizeittipps für Klein und Groß erfahren Sie auf dem Instagram-Account visit.siegburg der Tourist Information.
Ihre Stimme zählt! Unter mitmachen.siegburg.de laden wir Sie herzlich ein, sich mit der Stadtverwaltung über anstehende Themen in Siegburg auszutauschen, Ihr Wissen und Ideen einzubringen oder an Umfragen und Beteiligungen teilzunehmen. Der Vorteil: Eine einmalige Registrierung reicht aus, um bei sämtlichen Projekten mitzumachen.

Sonntag, 29. Juni 2025
10 bis 18 Uhr, Stadtmuseum, Markt 46:
Peter Reichenberger: "Farbwelten - zwischen Fingerabdruck und Handteller" (bis Sonntag, 29. Juni)
10 bis 18 Uhr, Stadtmuseum, Markt 46:
Projektkurses der Gesamtschule am Michaelsberg: "Gedenkstätten des Holocaust - Vergangenheit bewahren - Zukunft gestalten" (bis Freitag, 11. Juli)
ab 10.30 Uhr, Hans Alfred Keller-Schule, Chemie-Faser-Allee 5:
Fideles Deichhäuser Stadtteilfest
11 bis 17 Uhr, Marktplatz:
Tag der Feuerwehr 2025 (Foto)
17 Uhr, Katholisch-Soziales Institut, Bergstraße 26:
Führung durch KSI und Abtei mit Bertrand Stern
14 bis 17 Uhr, Café T.o.d., Nordfriedhof:
Das Café hat geöffnet
15 Uhr, Johannesgarten auf dem Michaelsberg:
Studiobühne: "Peter Pan"
16 Uhr, Vorplatz des Rhein Sieg Forums, Bachstraße 1:
Einweihung Sonnensegel
16 Uhr, Stadtmuseum, Markt 46:
Concert Big Band
19 Uhr, Stadtmuseum, Markt 46:
Konzertlesung mit Prof. Dr. Ute Büchter-Römer und Nadja Bulatovic: "Felix Mendelssohn Bartholdy und Fanny Hensel - ein außergewöhnliches Geschwisterverhältnis im 19. Jahrhundert"
Montag, 30. Juni 2025
10 bis 12 Uhr, St. Elisabeth, Chemie-Faser-Allee 2:
Lotsenpunkt Siegburg
14 bis 16 Uhr, Gemeinschaftsgarten, Cecilien-/Wellenstraße:
Der Gemeinschaftsgarten hat für Besucher geöffnet
15 bis 18 Uhr, Hof der Flüchtlingsunterkunft Deichhaus, Frankfurter Straße 110:
Spielmobil Armin
17.30 Uhr, Servatiushaus, Mühlenstraße 14:
Treffen der ZWAR-Gruppe Siegburg
15 bis 17 Uhr, Bürgergemeinschaft Zange, Bismarckstraße 56:
Pflegeberatung im Stadtteil

Das aktuelle Kinoprogramm entnehmen Sie bitte den Webseiten von
Capitol, Augustastr. 20, Tel.: +49 2241 62288, https://www.capitol-siegburg.de und
Cineplex, Europaplatz 1, Tel.: +49 2241 958080, https://www.cineplex.de.

Sonntag, 29. Juni, der 180. Tag in 2025
Wetter: "Peter und Paul hängen einem die Kirschen ins Maul" - Süßkirschenzeit!
Sonnenuntergang heute: 21.49 Uhr
Sonnenaufgang morgen: 5.21 Uhr
Monduntergang morgen: 0.10 Uhr
Mondaufgang morgen: 9.53 Uhr
Es wird heiß! Der Deutsche Wetterdienst warnt für heute und morgen, Sonntag und Montag, 29. und 30. Juni, vor einer starken Wärmebelastung im Rhein-Sieg-Kreis. Wichtig jetzt: Ausreichend und regelmäßig trinken! Vor allem Wasser, Säfte oder Brühe sind eine gute Wahl. Verzichten Sie möglichst auf Koffein, Alkohol und Getränke mit viel Zucker, um den Körper nicht zusätzlich auszutrocknen. Meiden Sie die Hitze und halten sich an kühleren Orten auf! Sportliche Aktivitäten oder alltägliche Erledigungen sollten jetzt nach Möglichkeit in die Morgen- oder Abendstunden gelegt werden. Bewahren Sie einen kühlen Kopf! - ob mit einer kalten Dusche zu Hause oder einem Besuch im Freibad. Auch hilfreich: Kühles Wasser über die Handgelenke fließen lassen, eine kalte Kompresse auf die Stirn oder in den Nacken legen oder ein erfrischendes Fußbad unter dem Schreibtisch einrichten. Halten Sie Ihre Wohnung kühl! Lüften Sie in den Nacht- oder Morgenstunden und verschatten Sie die Fenster über den Tag, um die Räume möglichst wenig aufzuheizen. Und am wichtigsten: Achten Sie auf sich und andere!
Peter und Paul (der Apostel Petrus, um das Jahr 1 in Bethsaida, heute El Aradsch/Syrien, oder Kapernaum am See Genezareth geborener Fischer, den Jesus im Matthäusevangelium als "Fels" - griechisch: "pétros" -, auf dem er seine Kirche bauen wolle, bezeichnet, starb um 64 in Rom; der Apostel Paulus war als Saulus Christenverfolger, im Jahre 35 dann in entsprechender Mission nach Damaskus gesandt, wo ihm Christus als Lichtgestalt erschienen sein: "Saulus, warum verfolgst du mich?" Das "Damaskus-Erlebnis" änderte ihn radikal, Saulus ließ sich taufen, wurde zum Glaubensverkünder Paulus); Gero (900 bis 967, Erzbischof von Köln, das Gerokreuz wird als Gnadenbild des Kölner Doms einem der wichtigsten Kreuzgnadenbilder in Italien gleichgestellt, dem "Volto Santo" im Dom von Lucca; Geros Leichnam liegt in der Stephanuskapelle im Kölner Dom).
Robert Schuman (1886-1963), französischer Politiker, einer der Gründerväter der Europäischen Union; Antoine de Saint-Exupéry (1900-1944), französischer Schriftsteller ("Der kleine Prinz"); Reinhard Mohn (1921-2009) Verleger (Bertelsmann); Ernst Albrecht (1930-2014), CDU-Politiker, von 1976 bis 1990 Ministerpräsident in Niedersachsen, Vater von EU-Kommissionspräsidentin Ursula von der Leyen; Oriana Fallaci (1929-2006), italienische Schriftstellerin und Journalistin ("Times", "Life", "New York Times"), interviewte 1979 als erste westliche Frau den iranischen Revolutionsführer Ajatollah Chomeini und riss sich während des Gesprächs den Tschador vom Leib; Gitte Hænning (1946), dänische Sängerin ("Ich will 'nen Cowboy als Mann"); Anne-Sophie Mutter (1963), Violinistin; Monika Gruber (1971), Kabarettistin und Schauspielerin; Nicole Scherzinger (1978), Sängerin und Tänzerin, Frontfrau der Pussycat Dolls ("Don't Cha", "Buttons"); Adam Sevani (1992), Schauspieler und Tänzer ("Step Up"); Emilio Sakraya (1996), deutscher Schauspieler, mimte den kürzlich verstorbenen Rapper Xatar (bürgerlich Giwar Hajabi) in dem autobiografischen Gangster-Drama "Rheingold".
1940: Paul Klee, der Schweizer Maler stirbt 60-jährig in Muralto; 1967: Jayne Mansfield, die amerikanische Schauspielerin kommt 34-jährig in Louisiana bei einem Verkehrsunfall ums Leben; 1970: Stefan Andres, der Schriftsteller ("El Greco malt den Großinquisitor") stirbt 64-jährig in Rom; 1990: Irving Wallace, der amerikanische Schriftsteller ("Der Preis", "Geheimakte R") stirbt 74-jährig in Los Angeles; 1992: Mohammad Boudiaf, der algerische Staatsratsvorsitzende wird 72-jährig in Annaba von einem Anhänger der verbotenen Islamischen Heilsfront erschossen; 1995: Lana Turner, die amerikanische Schauspielerin ("Solange es noch Menschen gibt", "Die drei Musketiere") stirbt 74-jährig in Los Angeles; 1998: Horst Jankowski, der Jazzpianist und Bandlader stirbt 62-jährig in Radolfzell; 2003: Katharine Hepburn, die amerikanische Schauspielerin ("Leoparden küßt man nicht", "African Queen") und vierfache Oscar-Gewinnerin stirbt 96-jährig in Saybrook/Connecticut; 2019: Florijana Ismaili, die Schweizer Fußballnationalspielerin (Kapitänin bei YB Bern, der Damen-Mannschaft der Young Boys) stirbt 24-jährig bei Musso im Comersee, als sie zur Abkühlung von einem Boot springt, ihre Leiche wird am 2. Juli über ein ferngesteuertes Spezial-Tauchgerät in 204 Metern Tiefe entdeckt und später geborgen; 2019: Guillermo Mordillo, der argentinische Zeichner ("Es war der zweite Tag nach meiner Geburt. Am ersten wurde ich geboren, am zweiten dachte ich: Ich will ein Karikaturist werden. So ungefähr muss es gewesen sein"), bekannt durch seine Knollennasen-Figuren, stirbt 86-jährig in Palmanova auf Mallorca; 2020: Carl Reiner, die amerikanische Comedy-Legende, Schauspieler ("Eine total, total verrückte Welt", "Ocean's Eleven"), Drehbuchautor ("Was diese Frau so alles treibt") und Regisseur ("Reichtum ist keine Schande", "Tote tragen keine Karos") stirbt 98-jährig in Beverly Hills; 2021: John Lawton, der britische Sänger (Les Humphries Singers, Uriah Heep) stirbt 74-jährig an einem Aneurysma; 2023: Alan Arkin, der amerikanische Schauspieler ("Warte, bis es dunkel ist" ,"Inspektor Clouseau"; Oscar für seine Großvater-Rolle in "Little Miss Sunshine", Golden-Globe-Nominierung für "Flucht aus Sobibor") stirbt 89-jährig im kalifornischen Carlsbad.
Vor 185 Jahren - 29. Juni 1840
Sebastian Longard, Andreas Simons sowie das spätere Ehepaar Johanna Mockel und Gottfried Kinkel gründen in Bonn den spätromantischen Dichterkreis "Maikäferbund". An Peter und Paul wird jeden 29. Juni das Stiftungsfest gefeiert, bis der Maikäferbund im Vorfeld der 1848-Revolution von der Obrigkeit verboten wird. Die wöchentliche Vereinszeitschrift "Der Maikäfer" (Auflage: 1) nimmt auch das Bonner Spießbürgertum aufs Korn.
Vor 155 Jahren - 29. Juni 1870
Edward Whymper, Christian Almer und Franz Biner besteigen im Mont-Blanc-Massiv als Erste die Aiguille Verte (4.122 m), das ist einer der schwierigsten Viertausender der Alpen.
Vor 125 Jahren - 29. Juni 1900
In Stockholm wird die Nobelstiftung errichtet. Sie nimmt Aufgaben bei der Vergabe der Nobelpreise wahr.
Vor 35 Jahren - 29. Juni 1990
Die internationale Ozonschutz-Konferenz in London beschließt unter Beteiligung von Umweltministern aus 89 Nationen, die Herstellung von Fluorchlorkohlenwasserstoff (FCKW) bis zum Jahr 2000 zu stoppen. FCKW wird als Kältemittel für Kühl- und Gefriergeräte und als Treibgas verwendet. Seit 1974 steht die Verbindung in Verdacht, die Ozonschicht in der Stratosphäre zu zerstören. Diese filtert die Hautkrebs erzeugende UV-B- und -C-Strahlung aus dem Sonnenlicht. Das Abkommen hat Erfolg: Das Ozonloch schließt sich langsam, bis spätestens 2070 soll es ganz verschwunden sein.
FCKW sind zudem mitursächlich für den Klimawandel - doch da ist weiterhin keine Lösung in Sicht.
Vor 30 Jahren - 29. Juni 1995
"Atlantis" meets "Mir" (russisch für Frieden oder Welt): Das amerikanische Spaceshuttle dockt für sechs Tage erstmals an die russische Raumstation an. Deren Besatzung wird ausgetauscht. Bis 1998 dockt das Spaceshuttle-Taxi weitere acht Mal an. Dann beginnt die Kooperation zum Bau der Internationalen Raumstation (IIS). 16 Staaten sind dabei.
Vor 30 Jahren - 29. Juni 1995
Im Deutschen Bundestag wird ein neues Abtreibungsrecht verabschiedet. Damit bleibt ein Abbruch laut Strafgesetzbuch zwar nach wie vor verboten, ist unter bestimmten Voraussetzungen aber straffrei. Die Bedingungen dafür sind in Paragraf 218 festgelegt: Schwangere müssen sich im Vorfeld bei einer anerkannten Stelle beraten lassen. Erst dann darf nach einer dreitägigen "Bedenkzeit" ein Abbruch durchgeführt werden, sofern die zwölfte Schwangerschaftswoche noch nicht überschritten ist. Die Kosten dafür tragen sie selbst.
Im Mai 2023 überprüft ein UN-Ausschuss diese Regelung und kritisiert die verpflichtende Beratung sowie die anschließende Wartezeit. Das Gremium empfiehlt Deutschland, sich an den Leitlinien der WHO zu orientieren und Schwangerschaftsabbrüche zu entkriminalisieren, um das Recht auf körperliche Selbstbestimmung zu gewährleisten.
Vor 30 Jahren - 29. Juni 1995
Es dauert nur Sekunden, dann ist der Nordflügel des Sampoong-Gebäudes in der südkoreanischen Hauptstadt Seoul vollständig eingestürzt. Im Sampoong-Warenhaus sterben 502 Menschen, 937 werden verletzt, zum Teil schwer. Ursachen der Katastrophe: Schlechte Baustoffe, Missachtung von Baunormen, miese Konstruktion, Bestechung der Bauaufsicht - das ganze Programm.
Vor 20 Jahren - 29. Juni 2005
Brasilien gewinnt den in Deutschland stattfindenden Konföderationen-Pokal im Endspiel gegen Argentinien mit 4:1. Deutschland gewinnt das Spiel um Platz 3 in Leipzig gegen Mexiko mit 4:3 nach Verlängerung.

Vor 115 Jahren - 29. Juni 1910
Die Gäste im städtischen Schwimmbad sind für die Beamten der Stadt da, nicht umgekehrt: Die Schieber an der Sieg werden herab- und der Mühlengraben abgelassen. Bis zum 2. Juli wird der innerstädtische Bachlauf gereinigt, zur Unzeit. Denn, so die Konsequenz: Das städtische Schwimmbad zwischen Siegwehr und Kattunfabrik (später Siegwerk) läuft trocken und bleibt für diese Tage geschlossen. Foto: Leert sich der Mühlengraben (hier eine Aufnahme vor 1929), läuft auch das nahe Schwimmbad trocken.

Vor 110 Jahren - 29. Juni 1915
Am Königlichen Lehrerseminar in Siegburg haben sich von den 22 Schülern der Oberklasse am Donnerstag die 18, die im militärdiensttauglichen Alter stehen, der Notprüfung unterzogen und dieselbe bestanden. Drei von ihnen waren schon in Uniform erschienen, die übrigen sind zum Militär gezogen. Foto: Lehrerseminar in der Humperdinckstraße um 1910.

Vor 110 Jahren - 29. Juni 1915
Peter und Paul, noch ein richtiger Feiertag. Viele Konzerte in der Stadt. Im Herrengarten gibt es ein Gastspiel der jugendlichen Instrumental-Virtuosin Lisbeth Ramacher. Ihr geht ein "beispielloser Erfolg" voraus. Ihre Künste: Xylophon-Vorträge und Handglockenspiele. Ein "Patriotisches Konzert" bietet der Kaiserhof nachmittags um 4 Uhr. Foto: Kaiserhof um 1902.

Vor 55 Jahren - 29. Juni 1970
Seit einer Woche ist die Ampelanlage an der Ecke Kaiserstraße/Johannesstraße außer Betrieb, seit einer Woche scheppert es. Fast täglich krachen Autos ineinander. Am Sonntag gleich drei. Foto: Blick auf die Schepper-Kreuzung.

Vor 15 Jahren - 29. Juni 2010
Das ist der Punkt, um den sich alles dreht an der künftigen Einfahrt zur Tiefgarage unter dem Facharztzentrum auf dem ehemaligen Henrich-Areal. Die Absperrungen um den kleinen Verkehrskreisel sind verschwunden, im Hintergrund wachsen die Hochbauten rasch aus dem Boden.

Vor 10 Jahren - 29. Juni 2015
Seinen 65-jährigen Geburtstag feiert das Capitol-Kino an der Augustastraße. Seit der Gründung 1950 befindet sich das Kino im Familienbesitz. Es wird mittlerweile von Maria Schulte-Bisping und Ihrer Tochter Christina Neff (Foto) in dritter und vierter Generation geführt. Neben dem laufenden Kinoprogramm bietet das Capitol auch Außerplanmäßiges an, etwa Vorpremieren, das beliebte "Frauenkino" oder den "Männerabend". Lieblingsfarbe der Chefinnen? Kennen wir nicht, wissen aber, dass sie dem Lokalkolorit zugeneigt sind. Die Premiere des Films "950 Jahre Siegburg" lief im Capitol, in Zusammenarbeit mit dem Landschaftsverband war man Gastgeber für die Erstaufführung des Films über die Hornpötter Hunnen. Seit 2013 verfügen alle drei Kinosäle - das "Capitol" mit 340, das "Studio" mit 100 und das "Movie" mit 109 Plätzen - über moderne Digitalprojektoren. Zusätzlich wurde auch die Tonanlage auf den neuesten Stand gebracht.
Für einen Besuch der Stadtverwaltung gilt: Erst hier Termin vereinbaren, dann vorbeikommen.
Tourist Information (+49 2241 102-7533 oder tourismus@stadtbetriebe-siegburg.de) und Stadtmuseum (+49 2241 102-7410 oder stadtmuseum@stadtbetriebe-siegburg.de), Markt 46, haben dienstags bis samstags zwischen 10 und 17 Uhr, sonntags zwischen 10 und 18 Uhr geöffnet (die Tourist Information auch montags von 10 bis 17 Uhr). Die Stadtbibliothek, Griesgasse 11, kann dienstags bis sonntags von 10 bis 17 Uhr besucht werden, Inhaber eines Büchereiausweises erhalten darüber hinaus während der Open-Library-Zeiten (dienstags bis sonntags von 8 bis 10 sowie 17 bis 20 Uhr) Zugang.
Aktuelle Öffnungszeiten des Oktopus Freizeitbad, Zeithstraße 110, können hier abgerufen werden. Der Zugang zum Bad ist mit einem Online-Ticket möglich, das hier erworben werden kann. Sie können das Online-Ticket auch mit Hilfe der Kolleginnen und Kollegen im Eingangsbereich des Hallen- und Freibades sowie im Stadtmuseum am Markt erwerben. Im Stadtmuseum ist der Ticketverkauf mit Bargeld möglich, ansonsten nur bargeldlos mit allen digitalen Zahlungsmitteln einschließlich der IBAN. Zusätzlich können Schwimmbadtickets vor Ort auch mit dem Siegburg-Gutschein (Karte oder App) erworben werden.
Polizei: 110
Feuerwehr/Notarzt/Rettungsdienst: 112
Krankentransport: +49 2241 19222
Ärztlicher Bereitschaftsdienst: 116117
Zahnärztlicher Bereitschaftsdienst: +49 1805 986700
Giftnotruf-Informationszentrale der Universitätsklinik Bonn: +49 228 19240
Apotheken-Notruf: +49 800 0022833
Telefonseelsorge: +49 800 1110111 oder +49 800 1110222
Sorgentelefon für Kinder und Jugendliche: 116111 oder +49 800 1110333
Bundesweites Hilfstelefon "Gewalt gegen Frauen": 116016
Opferschutzbeauftragter der Kreispolizeibehörde Siegburg: +49 2241 5413812
Beratungsstelle sexualisierte Gewalt: +49 228 635524
Zentraler Karten-Sperr-Notruf: 116116
Tierärztlicher Bereitschaftsdienst: Abrufbar über die Anrufbeantworter der Tierarztpraxen
Apotheken-Notdienst
Heide-Apotheke, Pastor-Biesing-Straße, Lohmar, Tel.: +49 2246 913650
Engel-Apotheke, Poststraße 111-113, Troisdorf, Tel.: +49 2241 75499
